Millwork Shop Drawings
Millwork shop drawings play a vital role in delivering high-quality interior and fit-out projects. Custom cabinetry, wall paneling, reception desks, counters, wardrobes, and bespoke joinery elements demand precise detailing to ensure smooth fabrication and flawless installatio
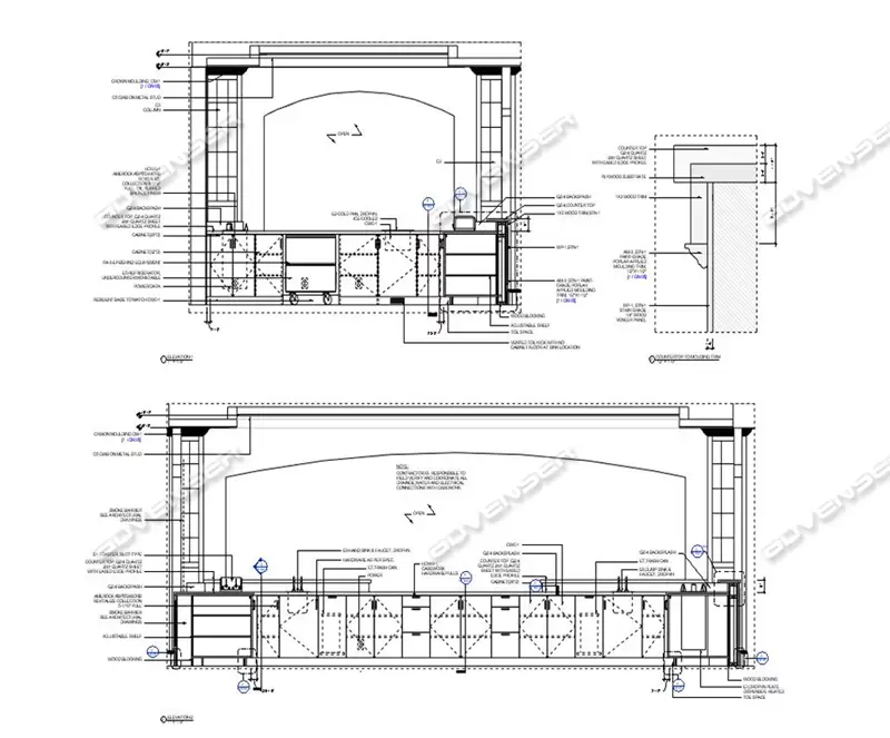
Advenser offers millwork shop drawing services that convert design concepts into clear, fabrication-ready documentation. Each drawing package is developed with complete attention to dimensions, material specifications, finishes, hardware details, joinery connections, and installation requirements.
Our Millwork Detailing Experience
Advenser supports a wide range of millwork and joinery projects across commercial, hospitality, residential, and retail sectors. The service is structured to support joinery contractors, interior fit-out firms, developers, and manufacturers who require technically sound and well-coordinated documentation. Drawings are prepared in alignment with project specifications, IFC drawings, and relevant standards, ensuring seamless coordination with architectural and MEP disciplines. Our detailing experience includes:
Custom Millwork
Casework & Cabinetry
Trim & Moldings
Custom Kitchens & Closets
Ornamental Wood Fixtures
Bathroom Vanities
Furniture Detailing
Door & Trim Casing
Wall Paneling Systems
Wooden Stairs & Framing
Commercial Casework
Our Software Expertise
Frequently Asked Questions
What information is required from the client to begin detailing?
We typically require approved architectural drawings, interior design details, material specifications, BOQs (if available), and any consultant guidelines.
Do you provide a dedicated point of contact?
Yes. Each project is assigned a dedicated coordinator to manage communication, revisions, and documentation flow.
How do you handle revisions and consultant comments?
Revisions are incorporated systematically through a tracked revision cycle to ensure clarity and proper documentation control.
Can you meet urgent project deadlines?
Project schedules are discussed at the outset. Depending on scope and complexity, delivery timelines are structured to align with fabrication and submission deadlines.
Do you coordinate directly with joinery contractors or fabricators?
Yes. We collaborate closely with fabricators and contractors to ensure detailing aligns with manufacturing processes and installation practices.
What file formats do you deliver?
Drawings are typically delivered in DWG, RVT, and PDF formats, or as per client requirements.
Can you support projects outside Dubai and Abu Dhabi?
Yes. Millwork detailing services are available across the UAE and can support regional GCC projects.
Can you scale resources for large or multi-site projects?
Yes. Structured teams allow us to scale delivery capacity for retail rollouts, hospitality chains, and commercial developments.





