Get a Quote

FAÇADE 2D DRAFTING SERVICES

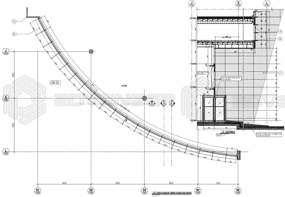
FAÇADE 2D DRAFTING SERVICES

Our Façade 2D Drafting services include Architectural CAD drafting and detailing for entire Façade i.e. Curtain Walls, Structural Glazing, Composite panel cladding, Canopies, Structural and Architectural awnings, Skylights and Internal/ External Doors & Windows. We have Façade teams specialized in SCHUCO, GUTMANN,GULF EXTRUSION JANSEN ECONOMY, JANISOL, VISS, ALCOA, PRESTO profile systems.

facade 2d drafting

We are experts in producing Facade construction document set in CAD as required by the client for submittal. We follow Client’s CAD façade standards. Once the project is approved and awarded by a client, we always stick to the same standards and templates for future projects of that particular client, to ensure Quality and consistency of our drawing. Our façade engineering team works in conjunction with architects, general contractors, structural contractors, acousticians and construction companies to improve overall performance, durability, schedule and cost of a building. We provide a total building façade envelope solution and ensure that each component is compatible with one another.

Check our work samples.

Look no further. Contact us today.

    Discuss Your BIM Requirements

    Share your project details and our team will respond within 24 hours.