Shop & Fabrication Drawing Services



Shop drawings function as a key aspect of any construction project, and they depict sizes, dimensions, assembly, material specifications, and other fabrication details. Our team of experts ensures that the shop drawings generated are reliable and conformant with the design intent. Our shop drawings assist the project execution crew in the following ways:
Architectural Shop Drawings:
Architectural shop drawings play a critical role in translating design intent into build-ready information. These drawings provide contractors, interior specialists, millwork fabricators, and civil teams with detailed specifications related to dimensions, alignment, materials, fixing methods, and installation sequences. Accurate architectural shop drawings help minimize errors, improve coordination, and ensure efficient fabrication and construction.
Architectural Shop Drawing Services:
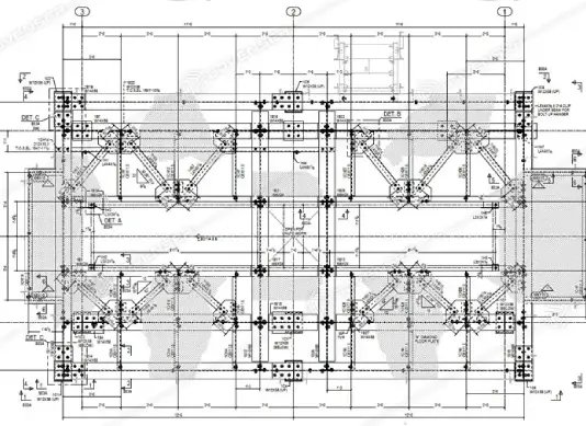
Structural Shop Drawings:
Structural shop drawings are essential during the construction phase, offering precise representations of structural layouts, sections, elevations, and connection details. These drawings support the accurate fabrication and placement of precast, rebar, and steel elements, ensuring structural integrity and compliance with design and engineering standards.
Structural Shop Drawing Services Include
MEP & HVAC Shop Drawings
MEP shop drawings are developed to support effective coordination and early clash resolution before on-site execution. They provide comprehensive fabrication and installation details for mechanical, electrical, and plumbing systems, enabling stakeholders to plan, coordinate, and execute services efficiently throughout the project lifecycle.
Facade Shop Drawings:
Facade shop drawings are made to represent the geometry, location, connections and design details of different building exterior components. The main purpose of facade shop drawings is to provide guidelines for accurate fabrication, assembling and erection of various façade systems.
Industrial Shop Drawings
Industrial shop drawings are essential for executing complex industrial construction projects, as they deliver fabrication-level details necessary for manufacturing, assembly, and installation. These drawings encompass layouts, elevations, sections, and detailed representations of various systems, aiding in minimizing errors and enhancing coordination among engineering, fabrication, and construction teams.
Industrial Shop Drawing Services Include:
Equipment shop drawings
Plant & machinery layout drawings
Shop drawings function as a key aspect of any construction project, and they depict sizes, dimensions, assembly, material specifications, and other fabrication details. Our team of experts ensures that the shop drawings generated are reliable and conformant with the design intent. Our shop drawings assist the project execution crew in the following ways:
It facilitates clear communication and easy access to information for all parties such as architects, MEP designers, and fabricators.
It helps in verification and validation by design team ensuring compliance with design and specifications.
Frequently Asked Questions
Do you provide shop drawings suitable for direct fabrication?
Yes. Drawings are produced at fabrication level, including dimensions, material specifications, connection details, tolerances, and annotations required for manufacturing and site installation.
Can you handle multi-disciplinary coordination (piping, MEP, structural)?
Yes. Industrial shop drawings are coordinated across piping, structural, mechanical, electrical, and plumbing systems to identify and resolve clashes before fabrication and construction.
Do you support brownfield, retrofit, and plant expansion projects?
Yes. Industrial shop drawings are frequently developed for brownfield facilities, retrofit projects, and plant expansions by incorporating existing site conditions and coordinating new installations.
Can you work with international codes and client-specific standards?
Yes. Industrial shop drawings can be prepared in compliance with international standards, regional codes, and client-defined specifications based on project location and requirements.
Do you support coordination with fabricators and contractors?
Yes. Industrial shop drawings are developed with close consideration of fabricator inputs and contractor workflows to ensure smooth execution on site
How are deliverables shared with clients?
Deliverables are shared in client-preferred formats such as DWG, PDF, and model files, with structured documentation for easy review and approval.
What level of detail (LOD) do your industrial shop drawings follow?
Industrial shop drawings are typically developed at fabrication-ready levels of detail suitable for manufacturing, installation, and coordination, based on project scope and contractor needs.
Can revisions be accommodated during fabrication or construction?
Yes. Revisions and updates can be managed efficiently to reflect design changes, site conditions, or client feedback without disrupting project timelines.
What is the typical turnaround time for industrial shop drawings?
Turnaround time depends on project complexity, scope, and coordination requirements. Schedules are aligned with fabrication and construction timelines to avoid delays.
Can you scale resources for large or fast-track industrial projects?
Yes. Teams can be scaled to support large-volume or fast-track industrial projects while maintaining consistency and quality across deliverables.
Can industrial shop drawings be linked with BIM or digital workflows?
Yes. Industrial shop drawings can be aligned with BIM-based workflows to improve coordination, visualization, and project control.
Shop Drawing Services Coverage
- » Shop Drawing Services Dubai
- » Shop Drawing Services Abu Dhabi
- » Shop Drawing Services Sharjah
- » Shop Drawing Services Ajman
- » Shop Drawing Services Ras Al Khaimah
- » Shop Drawing Services Fujairah
- » Shop Drawing Services Al Ain
- » Shop Drawing Services Riyadh
- » Shop Drawing Services Jeddah
- » Shop Drawing Services Makkah
- » Shop Drawing Services Madinah
- » Shop Drawing Services Dammam
- » Shop Drawing Services Al Khobar
- » Shop Drawing Services Jubail
- » Shop Drawing Services Doha
- » Shop Drawing Services Al Wakrah
- » Shop Drawing Services Al Khor
- » Shop Drawing Services Al Rayyan
- » Shop Drawing Services Kuwait City
- » Shop Drawing Services Hawalli
- » Shop Drawing Services Salmiya
- » Shop Drawing Services Farwaniya
- » Shop Drawing Services Muscat
- » Shop Drawing Services Salalah
- » Shop Drawing Services Tel Aviv
- » Shop Drawing Services Jerusalem
- » Shop Drawing Services Amman
- » Shop Drawing Services Beirut
- » Shop Drawing Services Tehran
- » Shop Drawing Services Baghdad
- » Shop Drawing Services UAE
- » Shop Drawing Services Saudi Arabia
- » Shop Drawing Services Qatar
- » Shop Drawing Services Kuwait
- » Shop Drawing Services Oman
- » Shop Drawing Services Israel
- » Shop Drawing Services Jordan
- » Shop Drawing Services Lebanon
- » Shop Drawing Services Iran
- » Shop Drawing Services Iraq
- » Shop Drawing Services Nigeria
- » Shop Drawing Services Ghana
- » Shop Drawing Services Ivory Coast
- » Shop Drawing Services Senegal
- » Shop Drawing Services Kenya
- » Shop Drawing Services Uganda
- » Shop Drawing Services Ethiopia
- » Shop Drawing Services Tanzania
- » Shop Drawing Services Egypt
- » Shop Drawing Services Morocco
- » Shop Drawing Services Algeria
- » Shop Drawing Services Tunisia
- » Shop Drawing Services South Africa
- » Shop Drawing Services DR Congo
- » Shop Drawing Services Cameroon
- » Shop Drawing Services Angola
- » Shop Drawing Services Lagos
- » Shop Drawing Services Abuja
- » Shop Drawing Services Accra
- » Shop Drawing Services Abidjan
- » Shop Drawing Services Dakar
- » Shop Drawing Services Nairobi
- » Shop Drawing Services Kampala
- » Shop Drawing Services Addis Ababa
- » Shop Drawing Services Dar es Salaam
- » Shop Drawing Services Cairo
- » Shop Drawing Services Casablanca
- » Shop Drawing Services Rabat
- » Shop Drawing Services Algiers
- » Shop Drawing Services Tunis
- » Shop Drawing Services Johannesburg
- » Shop Drawing Services Cape Town
- » Shop Drawing Services Pretoria
- » Shop Drawing Services Durban
- » Shop Drawing Services Kinshasa
- » Shop Drawing Services Douala
- » Shop Drawing Services Luanda




